赤坂グランドハウス 301|リノベマンション販売情報|パックシステム
写真枚数:11枚
アイコンの説明
ペット可ペット相談可能
新着2週間以内の新規公開物件
駅近駅から徒歩10分以内
価格変更2週間以内の価格更新
築浅築10年以内の物件
眺望眺望に優れた上階のお部屋
オススメ当社のイチオシ物件
■リノベーション済 ■高級レジデンス
◆港区赤坂8丁目の高台に位置するヴィンテージマンション
◇青山一丁目駅・乃木坂駅より徒歩圏内
◆ホテルライクで高級感のある共用部
◆最高級リノベーションデザインシリーズ「ArchiBlack」
◇黒いモダン家具や流行の異素材ミックスインテリアに最適
◆主張しすぎずおしゃれなマット調の建具を採用
◇洗練された現代的な高級デザインを意識
| 小学校区 | 港区立赤坂小学校(東京都港区)この学区の他の物件を見る |
|---|---|
| 中学校区 | 赤坂中学校(東京都港区)この学区の他の物件を見る |
※物件情報の学区情報について
当サイト物件情報に記載されております通学区域(学区)情報は、国土数値情報ダウンロードサービスが提供する小学校区データ【2016年度】及び中学校区データ【2016年度】を元に加工したものですので、記載情報が現在の学区域と異なる場合がございます。
国土数値情報ダウンロードサービスのWEBサイト上で記述通り、データは必ずしも正確とは言えません。また、通学区域(学区)は毎年見直しの対象となりますので、そちらを踏まえ学区情報は参考としてご活用下さい。
| 価格 | 万円 | ||
|---|---|---|---|
| 年利率 | % |
||
| ボーナス払い | |||
| 返済年数 | |||
| 頭金 | 万円 | ||

毎月のご返済額 |
ボーナス(×年2回) |
物件価格26,900万円 |
| マンション名 | 赤坂グランドハウス赤坂グランドハウス | ||
|---|---|---|---|
| 価格 | 26,900万円 | ||
| 物件種別 | 中古マンション | ||
| 所在地 |
東京都港区赤坂8-6-17
|
||
| 交通 |
東京メトロ千代田線 乃木坂駅 徒歩6分
東京メトロ銀座線 青山一丁目駅 徒歩5分 東京メトロ半蔵門線 青山一丁目駅 徒歩5分 |
||
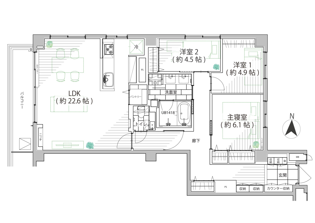
| 間取り | 3LDK | ||
| 専有面積 | 100.62m2 | ||
| 築年月 | 1979年7月築 | ||
| 管理費等 | 31,277円 | ||
| 修繕積立金 | 28,680円 | ||
| その他費用 | ヒーツ関係費用:月額 22,642円 |
||
| 所在階/階数 | 3階/地上5階 地下2階建 | ||
| バルコニー面積 | 9m² | ||
| ルーフバルコニー面積 | |||
| 採光面 | 西 | 取引態様 | 売主 |
| 現況 | 空家 | 引渡し | 相談 |
| 総戸数 | 48戸 | 構造 | RC造 |
| テラス面積 | - | 専用庭面積 | - |
| 駐車場 | 有 | 駐輪場 | 無 |
| 駐車場 備考 | 駐輪場 備考 | ||
| 建物権利 | 区分所有 | 土地権利 | - |
| 管理態様 | 管理形態:委託(通勤) 管理組合:あり 管理会社:大和ライフネクスト株式会社 |
||
| 用途地域 |
第一種中高層住居専用地域
-
-
|
||
| リノベーション箇所 | |||
| リノベーション時期 | |||
| リノベーション補足 | |||
| 情報更新日 | 2026年04月20日 | ||
| 次回更新日 | 2026年05月04日 | ||
※各種情報と差異がある場合は現況優先となります