弦巻ヒルズ 204|リノベマンション販売情報|パックシステム
写真枚数:4枚
アイコンの説明
ペット可ペット相談可能
新着2週間以内の新規公開物件
駅近駅から徒歩10分以内
価格変更2週間以内の価格更新
築浅築10年以内の物件
眺望眺望に優れた上階のお部屋
オススメ当社のイチオシ物件
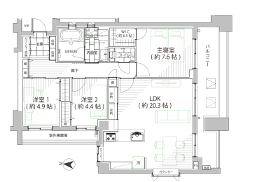
■2026年6月リノベーション完成予定 ■ペット飼育可 (細則有) ■南向き
◆東急田園都市線 桜新町駅、東急世田谷線 上町駅から徒歩圏内
◇世田谷の閑静な住宅街に立地
◇明るいクリーム色のタイル貼りの外観が上品な印象
◇近隣には世田谷区立中央図書館などの文教施設があり、子育て環境も充実
| 小学校区 | 世田谷区立松丘小学校(東京都世田谷区)この学区の他の物件を見る |
|---|---|
| 中学校区 | 弦巻中学校(東京都世田谷区)この学区の他の物件を見る |
※物件情報の学区情報について
当サイト物件情報に記載されております通学区域(学区)情報は、国土数値情報ダウンロードサービスが提供する小学校区データ【2016年度】及び中学校区データ【2016年度】を元に加工したものですので、記載情報が現在の学区域と異なる場合がございます。
国土数値情報ダウンロードサービスのWEBサイト上で記述通り、データは必ずしも正確とは言えません。また、通学区域(学区)は毎年見直しの対象となりますので、そちらを踏まえ学区情報は参考としてご活用下さい。



| 価格 | 万円 | ||
|---|---|---|---|
| 年利率 | % |
||
| ボーナス払い | |||
| 返済年数 | |||
| 頭金 | 万円 | ||

毎月のご返済額 |
ボーナス(×年2回) |
物件価格16,800万円 |
※各種情報と差異がある場合は現況優先となります