目黒台スカイマンション 217|リノベマンション販売情報|パックシステム
写真枚数:15枚
アイコンの説明
ペット可ペット相談可能
新着2週間以内の新規公開物件
駅近駅から徒歩10分以内
価格変更2週間以内の価格更新
築浅築10年以内の物件
眺望眺望に優れた上階のお部屋
オススメ当社のイチオシ物件
■リノベーション済 ■恵比寿スカイウォークより徒歩6分 ■耐震適合マンション ※長谷工リアルエステートにて専任販売中
◆目黒駅 徒歩8分、恵比寿駅 徒歩10分(恵比寿スカイウォークより徒歩6分)
◇目黒川を見下ろす高台の閑静な住宅街に佇むヴィンテージマンション
◆1979年築、総戸数204戸の重厚感あるビッグコミュニティ
◇目黒川の桜並木が近く、四季折々の豊かな自然を享受できるロケーション
◆商業施設が徒歩圏内で、生活利便性も抜群
◆都会的なデザインが街に馴染むデザインシリーズ「Urban Mix」
◇ブラックを基調としたスタイリッシュな室内
◆モダンで洗練された上質な日常を演出
| 小学校区 | 目黒区立田道小学校(東京都目黒区)この学区の他の物件を見る |
|---|---|
| 中学校区 | 大鳥中学校(東京都目黒区)この学区の他の物件を見る |
※物件情報の学区情報について
当サイト物件情報に記載されております通学区域(学区)情報は、国土数値情報ダウンロードサービスが提供する小学校区データ【2016年度】及び中学校区データ【2016年度】を元に加工したものですので、記載情報が現在の学区域と異なる場合がございます。
国土数値情報ダウンロードサービスのWEBサイト上で記述通り、データは必ずしも正確とは言えません。また、通学区域(学区)は毎年見直しの対象となりますので、そちらを踏まえ学区情報は参考としてご活用下さい。
| 価格 | 万円 | ||
|---|---|---|---|
| 年利率 | % |
||
| ボーナス払い | |||
| 返済年数 | |||
| 頭金 | 万円 | ||

毎月のご返済額 |
ボーナス(×年2回) |
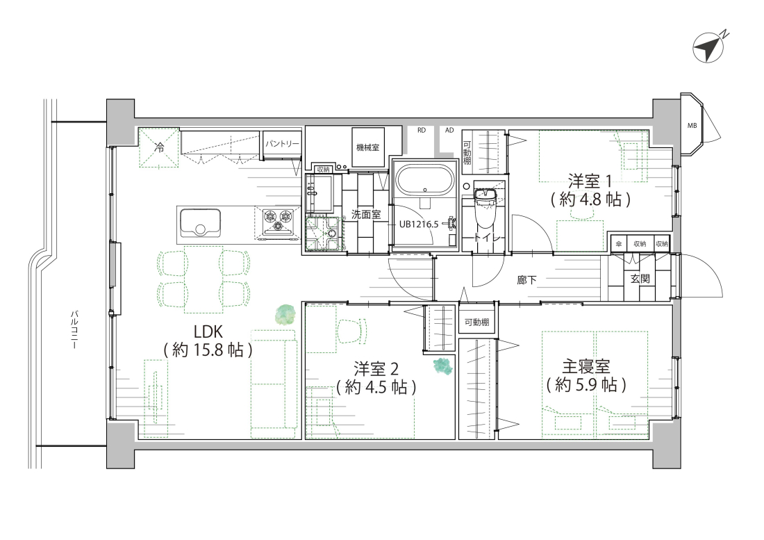
物件価格12,980万円 |
※各種情報と差異がある場合は現況優先となります